Column and shoe with stair detail of construction in AutoCAD
Description
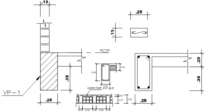
Column and shoe with stair detail of construction in AutoCAD plan include detail of wall and support of column with necessary view of shoe and stair in construction view in file.
Uploaded by:
Eiz
Luna

